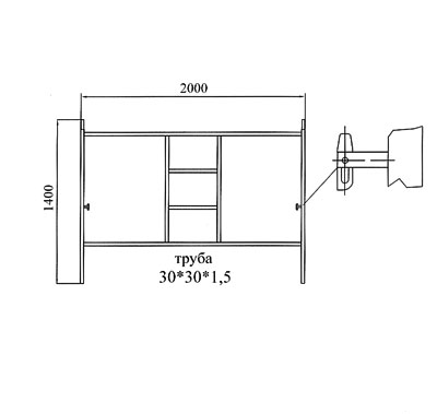
РамаВертикальные несущие элементы каркаса вышки. По вертикали соединяются между собой по принципу "труба в трубу" через втулки горизонтальных стяжек. Представляют собой плоскую сварную раму, оборудованную лестничными перекладинами, которые обеспечивают подъем персонала на рабочие площадки и служат для укладки настила.
 
|